Estamos de reestreno

Visita el "nuevo" CoWorking Irun

Feliz coworking

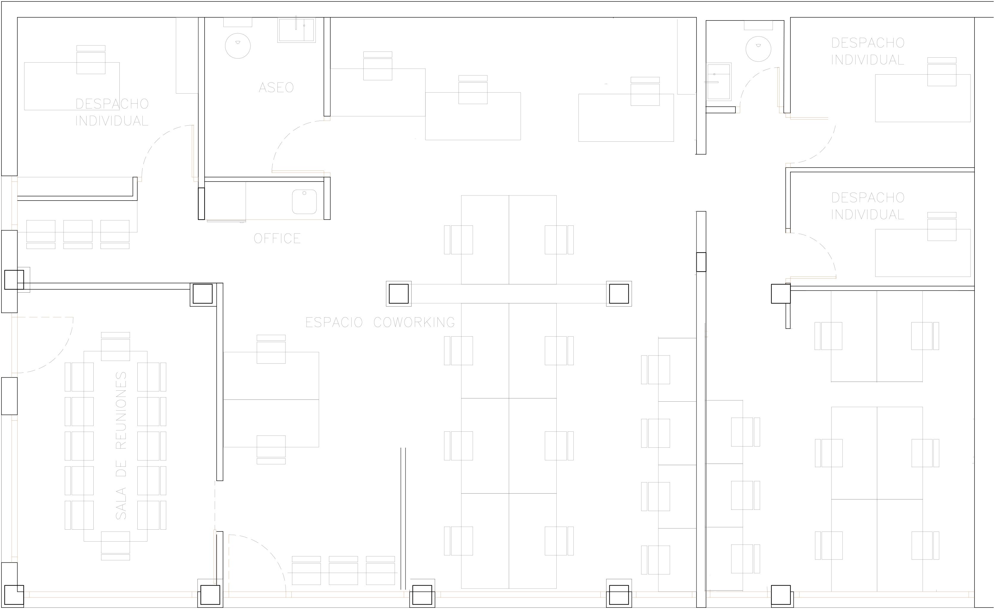
Durante los meses de Septiembre y Octubre 2019 hemos reformado y ampliado en 120 m² nuestro antiguo espacio de Coworking. El nuevo espacio resultante más amplio y luminoso, cuenta con una nueva sala de reuniones, una nueva zona de relax con cocina completa, terraza exterior con guardabicis, 2 wc, 3 despachos individuales y 26 nuevos puestos de trabajo en despacho compartido.

En CoWorking Irun encontrarás mucho más que un espacio en el que poner en marcha tus ideas. Anímate a formar parte de nuestra comunidad y presume de oficina.

Opiniones

¡Excelente espacio de trabajo! Un espíritu colaborativo, un equipo brillante. Soy miembro de Coworking Irun desde hace 4 años, tengo 15 años de experiencia como autónoma y planeo quedarme allí por muchos años más. Perrine, traductora e intérprete, directora de Vert Majuscule, SLU.

Prueba 1 día gratis